Wie wil graag wonen, in het centrum van Groningen ?

Gevraagd

Prijs:
Gevraagd
Sinds:
3 maanden+
Gezien:
252 keer
Adverteerder:
tavenier
Plaats:
Groningen
Telefoon:
n.v.t
Activiteit:
5 jaar actief op Marktnet

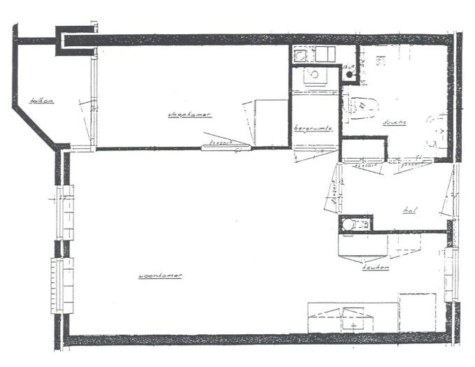
Hallo, ik zou graag mijn sociale huurwoning met vaste huurtoeslag op het adres Kleine Butjesstraat 8 /9712 EX te Groningen willen ruilen met een sociale huurwoning het liefst in een veilige straat en buurt het liefst in een binnenwijk van Amsterdam ( of eventueel Rotterdam of Den Haag ) ! Ik heb een gelijksvloerse benedenwoning met dubbelle beglazing,goede geluid-isolatie, 1 woonkamer met een open keuken, 1 slaapkamer met een leuk klein balkon aan de voorkant, een ruime inloop opbergruimte, energielabel B en met cv in de gang met meterkast, in de badkamer met douche,toilet en wastafel met spiegel !" Deze woning is ruim 28 vierkante meter maar heeft een goede praktische muurverdeling en hierdoor genoeg plek voor meubels! Deze woning ligt op 1 van de mooiste plekken uitkijkend op de zeer populaire Butjesstraat midden in het centrum van Groningen, dichtbij de Grote Markt en de Vismarkt en met alle sociale,culturele,park/groen,hulp en zorg voorzieningen inclusief vele winkels, het OV en het centrale treinstation ook op loopafstand! Een voordeliger en mooiere plek zult u zeer beslist ook niet zo gemakkeljk en snel hierin het midden van het centrum voor deze mooie huurprijs weer vinden! Grijp nu uw kans want om voor deze woning in aanmerking te komen, dient uw normaal tenminste vele jarenlang reeds ingeschreven te zijn ! Ik zoek het liefst een gelijkvloerse sociale huurwoning met ook na de woningruil een vaste huurtoeslag of in een veilige straat in een binnenwijk en graag op loopafstand van het centrum van Amsterdam(,Rotterdam of Den Haag) en vanaf ongeveer ruim vanaf 25 vierkante meter of liever nog meer(met eventueel 1 slaapkamer of meer)? Indien met lift dan maakt het niet uit op welke verdieping of etage en anders niet meer dan 4 verdiepingen hoog bij een bovenwoning,flat,portiek,hat,maisonnette of studio huurwoning met een vaste trap ? Ik hoop dat u ook graag een sociale huurwoning met vaste huurtoeslag ook na de 1 op 1 woningruil met mij wilt ruilen in het liefst Amsterdam ( of eventueel Rotterdam of Den Haag ) en heeft aan te bieden? Alvast bedankt en mvg.E.M.Hendriks ! Indien u graag uw woning met mijnhuurwoning wilt ruilen, stuur dan uw reactie's via [email protected] het emailadres van 1 van mijn beste vrienden naar mij toe? (PS>Sorry,voor de eventuelle schrijf en type fouten) !

Advertentienummer: 46938549