
Nieuw goedkoop tuinhuis met zadeldak te koop.
Specificaties Caroline SGC 390X575:
Basis: Caroline SGC (onbehandeld vuren) € 6.245,00
- Houtsoort: onbehandeld noord-europees vuren
- Wanddikte: 40 mm
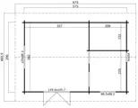
- Funderingsmaat (bxd): 575x390 cm
- Buitenmaat (bxd): 595x4010 cm
- Dakmaat (bxd): 681x490 cm
- Deuropening: 139,4 x 187,5 cm
- Raamopening: 78,2 x 78.2 cm
- Glas: 4 mm helder glas
- Dakbedekking: EXCLUSIEF
- Vloeroppervlak: 21,7 m2
- Zijwandhoogte: 234 cm
- Nokhoogte: 331 cm
- Dakoverstek voorzijde: 150 cm
- Dakhelling: 27°
- Raam type: draai-kiepraam
- Vloer: Inclusief vloer.
Uw Tuinhuis behandeld in trendkleuren:
- Caroline Platinum Grey € 9.409,00
- Caroline Carbon Grey € 9.409,00
- Shingles Zwart / 14 pak incl. nagels € 452,00
- Shingles Rood / 14 pak incl. nagels € 452,00
- Shingles Groen / 14 pak incl. nagels € 452,00
- Dakgootset Ø10cm / D400cm € 452,00
- Ventilatie rooster set € 11,00
- Voorzien van 3 ruimtes
- Inclusief (slaap)zolder met houten trap
- 1 x dubbel raam en 2 x enkel raam
- 1 x dubelle deur en 1 x enkele deur
De enkele deur is op plaats naar wens in te bouwen.
GRATIS THUISLEVEVERING IN HEEL BELGIË EN NEDERLAND (m.u.v. Waddeneilanden).
Eigen plaatsingsdienst.
Meer informatie:
http://https://goedkooptuinhuis.be/shopv2/home/749-tuinhuis-blokhut-caroline-sgc-390x575-cm.html