Home
Plaats advertentie
Inloggen
Home
Bouwmateriaal
Woonunits en keten
Woonunit met 2 slaapkamers
Woonunit met 2 slaapkamers
Sinds: 3 maanden+
Gezien: 1615 keer
Bewaren
Website
Liber Units
Waspik
Bekijk alle 94 advertenties
Meer dan 3 maanden geleden gezien op Marktnet
Beschrijving
Merk: Brouwer
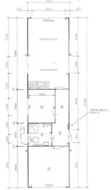
Afmetingen: 12x3m
een slaapkamers afm. 3x3m. voorzien marmoleum.
een slaapkamer 2.36x1.90 voorzien van marmoleum vloerbedekking
woonkamer/keuken 5.08x3 m voorzien van marmoleum vloerbedekking
in sanitaire ruimte voorzien van epoxy gietvloer
sanitaire ruimte voorzien van douche, w.c., wastafel warm/koud water en wasmachine aansluiting/afvoer
aluminium schuifvensters dubbelglas
keuken is niet voorzien van koelkast en/ of electrische kookplaat
voorzien van nieuwe dakbedekking
huurprijs korter dan 6 maanden euro 84 per week, huurprijs langer dan 6 maanden euro 77 per week
Minimale huurperiode is 3 maanden
koopprijs euro>
prijzen zijn ex btw ex transport
Meer informatie:
http://www.liberunits.nl
Andere advertenties van Liber Units
Woonunit 3 slaapkamers
Unit 6x3 4 zijde glas
10x3m keukenblok en toilet
Toilet/douche unit 6x3
Unit 6x3 met 2 zijde glas
Materiaalcontainer
Bekijk alle 94 advertenties van deze adverteerder
Advertentienummer: 17815346
Meld tegen de regels