Kleed/douchegebouw

Sinds: 3 maanden+
Gezien: 130 keer
Website
Liber Units
Waspik
Bekijk alle 94 advertenties
Meer dan 3 maanden geleden gezien op Marktnet
Nederland
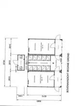
  • Merk Fort Bouw
  • afm. 6.21x8.70x2.80m.
  • 2 x 300 liter electrische boiler
  • Polyester binnen- buitenzijde
  • Epoxy gietvloer in douchegedeelte
  • Marmoleum vloerbedekking in kleedkamers
  • koopprijs vanaf €7.800,- -€ 9.300,- tot €>
  • er is ook een variant met totaal 4 douches, 2 wastafels en een 200 liter boiler. Koopprijs hiervan bedraagt ook euro>
  • Er is ook een variant met 2 kleedkamers, waarbij een kleedkamer 4 douches heeft en de andere kleedkamer 5 douches heeft en 2 x300 liter boiler. Koopprijs hiervan bedraagt euro>

Meer informatie:
http://www.liberunits.nl

Advertentienummer: 17815347