Home
Plaats advertentie
Inloggen
Home
Bouwmateriaal
Woonunits en keten
4 of 5 delige woonit
4 of 5 delige woonit
Sinds: 3 maanden+
Gezien: 1213 keer
Bewaren
Website
Liber Units
Waspik
Bekijk alle 94 advertenties
Meer dan 3 maanden geleden gezien op Marktnet
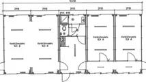
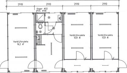
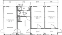
Beschrijving
merk fort units
polyester buitenzijde
geisoleerde wanden, vloeren en daken
aluminium schuifvensters voorzien van dubbelglas
binnenzijde afwasbaar vinyl behang
electrische verlichting en verwarming
marmoleum vloerbedekking
iedere unit heeft zijn eigen groepenkast en kan dus zelfstandig gebruikt worden
dit unitgebouw kan verder uitgebreid worden
dit unitgebouw kan naar gelang ook kopsgeschakeld worden bijv. 9x12m.
u kunt zelf indeling bepalen
4 delige woonunit 13.000 ex btw
5 delige woonunit 15.500 ex btw
Meer informatie:
http://www.liberunits.nl
Andere advertenties van Liber Units
Woonunit 3 slaapkamers
Unit 6x3 4 zijde glas
10x3m keukenblok en toilet
Toilet/douche unit 6x3
Unit 6x3 met 2 zijde glas
Materiaalcontainer
Bekijk alle 94 advertenties van deze adverteerder
Advertentienummer: 17815329
Meld tegen de regels